Imagen Principal del Desarrollo

POLO INDUSTRIAL PUNTO B

Primer proyecto de naves modulares en un lugar estrategico de la ciudad de San Luis, conoce un concepto nuevo para tu negocio e industria.



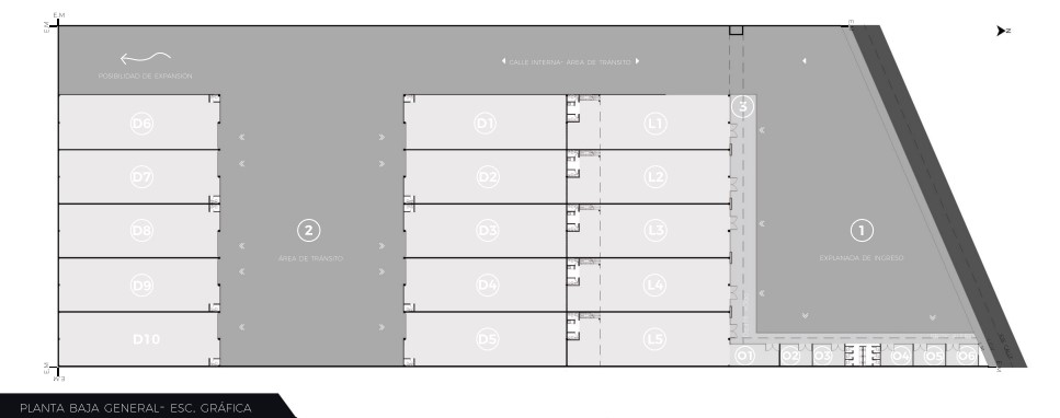
17 naves modulares (Desde 300m2)

Descargar Brochure

En Cercanía de Todo lo que Necesitas

Ruta 146,Lateral Santos Ortiz, San Luis

Mapa del Desarrollo

Sobre el Proyecto

Icon 1

Naves

17 naves completamente modulares para adaptarse a cualquier negocio.

Icon 2

Oficinas

Espacios comerciales que impulsan el crecimiento.

Icon 3

Coworking

Espacio de coworking para trabajar en conjunto.

Icon 3

Estacionamiento

Predio con estacionamiento propio para 100 autos.

Icon 3

Playon

Playon de maniobras amplio para viraje y descarga.

Imagen del Proyecto

Nuestras Naves

Nuestras naves están enfocadas en aquellos perfiles orientados en buscar comodidades para su negocio con tecnologia, accesibilidad y la posibilidad de modular naves a partir de 300m2.

Detalle del Proyecto

POLO INDUSTRIAL en el corazon de la provincia

Plan Maestro del Desarrollo

Contacto

WhatsApp: +54 9 2657 20-4693

Instagram: fontanaarquitectos - Seguinos en Redes !!

Email: fontanaarquitectos@gmail.com

Calle 9 de julio 1008, Ciudad de San Luis

Contact Us

Contactate para más información